Descripción
AMAT IMMOBILIARIS presenta una excelente nave industrial que combina espacios amplios, funcionalidad y una ubicación estratégica.
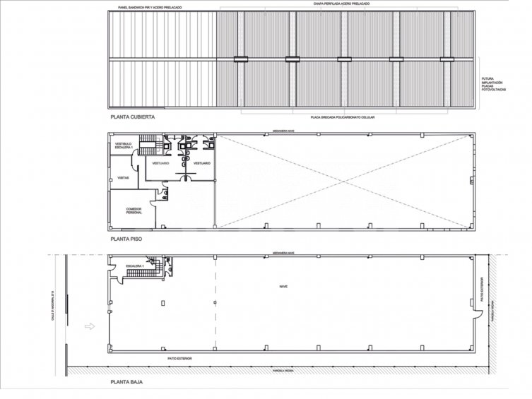
La nave cuenta con una planta baja diáfana de 729 m², que ofrece una superficie totalmente aprovechable para procesos industriales, almacenamiento o logística interna. Además, dispone de un altillo de 113 m², ideal para oficinas, zona administrativa, sala de reuniones o espacios complementarios según las necesidades de cada empresa.
Los 371 m² de patios exteriores aportan versatilidad y facilitan la maniobra de vehículos, operaciones de carga y descarga o espacios de soporte adicionales.
Las dimensiones de la planta baja (53,86 x 13,25 m) permiten una organización óptima y flexible según la actividad.
Características que marcan la diferencia: Estructura sólida de hormigón prefabricado y cerramientos de obra vista, que garantizan durabilidad y bajo mantenimiento. Puerta TIR que facilita la entrada de tráileres y vehículos de gran tonelaje. Acceso independiente para peatones, perfecto para separar flujos de entrada de personal y mercancías. Altura libre de 8 metros, ideal para estanterías de gran altura, sistemas de paletización o maquinaria industrial. Instalación eléctrica completa y sistema PCI implementado, asegurando un funcionamiento inmediato y con las medidas de seguridad necesarias. Placas fotovoltaicas en la cubierta, que permiten reducir significativamente el consumo energético y mejorar la eficiencia de la actividad.
Cubierta aislante con lucernarios, que aportan luz natural y optimizan el confort interior.
Situada en un polígono industrial totalmente consolidado, esta nave cuenta con excelentes comunicaciones viales, favoreciendo el acceso rápido a los principales ejes de transporte y facilitando la conexión con proveedores, clientes y centros logísticos de la región.
Se trata de un inmueble ideal tanto para actividades industriales como logísticas, con todas las prestaciones necesarias para iniciar la actividad desde el primer día.
La nave cuenta con una planta baja diáfana de 729 m², que ofrece una superficie totalmente aprovechable para procesos industriales, almacenamiento o logística interna. Además, dispone de un altillo de 113 m², ideal para oficinas, zona administrativa, sala de reuniones o espacios complementarios según las necesidades de cada empresa.
Los 371 m² de patios exteriores aportan versatilidad y facilitan la maniobra de vehículos, operaciones de carga y descarga o espacios de soporte adicionales.
Las dimensiones de la planta baja (53,86 x 13,25 m) permiten una organización óptima y flexible según la actividad.
Características que marcan la diferencia: Estructura sólida de hormigón prefabricado y cerramientos de obra vista, que garantizan durabilidad y bajo mantenimiento. Puerta TIR que facilita la entrada de tráileres y vehículos de gran tonelaje. Acceso independiente para peatones, perfecto para separar flujos de entrada de personal y mercancías. Altura libre de 8 metros, ideal para estanterías de gran altura, sistemas de paletización o maquinaria industrial. Instalación eléctrica completa y sistema PCI implementado, asegurando un funcionamiento inmediato y con las medidas de seguridad necesarias. Placas fotovoltaicas en la cubierta, que permiten reducir significativamente el consumo energético y mejorar la eficiencia de la actividad.
Cubierta aislante con lucernarios, que aportan luz natural y optimizan el confort interior.
Situada en un polígono industrial totalmente consolidado, esta nave cuenta con excelentes comunicaciones viales, favoreciendo el acceso rápido a los principales ejes de transporte y facilitando la conexión con proveedores, clientes y centros logísticos de la región.
Se trata de un inmueble ideal tanto para actividades industriales como logísticas, con todas las prestaciones necesarias para iniciar la actividad desde el primer día.
Mapa