Description
AMAT IMMOBILIARIS presents a new, high-end house for sale, located in the upper area of Sant Just Desvern, next to the prestigious La Miranda neighbourhood of Esplugues.
This is a fully renovated, brand-new detached house, distributed over 2 floors, with an annex for guests, children, or independent family members.
On the 2nd floor, there is an independent flat featuring a living-dining room and open kitchen with access to a large terrace, plus 1 en-suite bedroom. It also includes parking (1 space) and access to the roof-solarium.
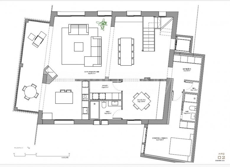
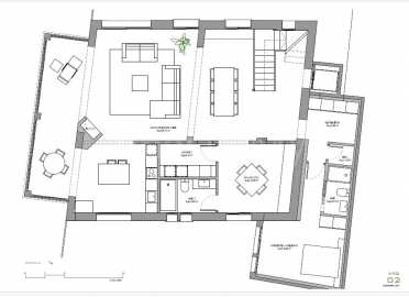
The 1st floor houses the day area with a spacious living-dining room opening onto a terrace and a semi-open kitchen-office. It also includes 1 en-suite bedroom with bathroom and wardrobes, 1 office-room with a 2nd bathroom, and a laundry area.
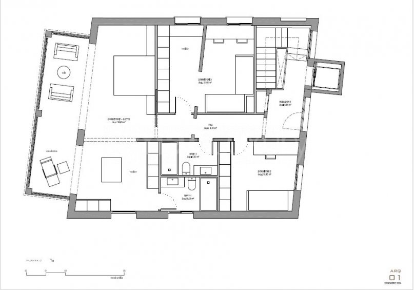
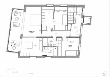
The ground floor contains the sleeping area with 1 master suite with large walk-in wardrobe, integrated bathroom, and terrace access, plus 2 double bedrooms, 2nd full bathroom, and entrance hall with access to the large garden and swimming pool on the lower level.
The property features parquet floors, porcelain stoneware in the bathrooms, and non-slip extruded stoneware outdoors. Aerothermal climate control system. Spacious garden with an 8x3 m pool (depth 1.25–1.70 m). Optional space to install a lift (€20,000).
Surrounded by prestigious international schools and services, offering a combination of urban convenience and natural serenity, just 15 minutes from the airport and 10 minutes from central Barcelona.
A unique and singular home concept, where spacious interiors and outward orientation dominate, with stunning panoramic views of Baix Llobregat and Collserola.
This is a fully renovated, brand-new detached house, distributed over 2 floors, with an annex for guests, children, or independent family members.
On the 2nd floor, there is an independent flat featuring a living-dining room and open kitchen with access to a large terrace, plus 1 en-suite bedroom. It also includes parking (1 space) and access to the roof-solarium.
The 1st floor houses the day area with a spacious living-dining room opening onto a terrace and a semi-open kitchen-office. It also includes 1 en-suite bedroom with bathroom and wardrobes, 1 office-room with a 2nd bathroom, and a laundry area.
The ground floor contains the sleeping area with 1 master suite with large walk-in wardrobe, integrated bathroom, and terrace access, plus 2 double bedrooms, 2nd full bathroom, and entrance hall with access to the large garden and swimming pool on the lower level.
The property features parquet floors, porcelain stoneware in the bathrooms, and non-slip extruded stoneware outdoors. Aerothermal climate control system. Spacious garden with an 8x3 m pool (depth 1.25–1.70 m). Optional space to install a lift (€20,000).
Surrounded by prestigious international schools and services, offering a combination of urban convenience and natural serenity, just 15 minutes from the airport and 10 minutes from central Barcelona.
A unique and singular home concept, where spacious interiors and outward orientation dominate, with stunning panoramic views of Baix Llobregat and Collserola.
Map
Starlab Barcelona SL
Video