Description
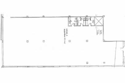
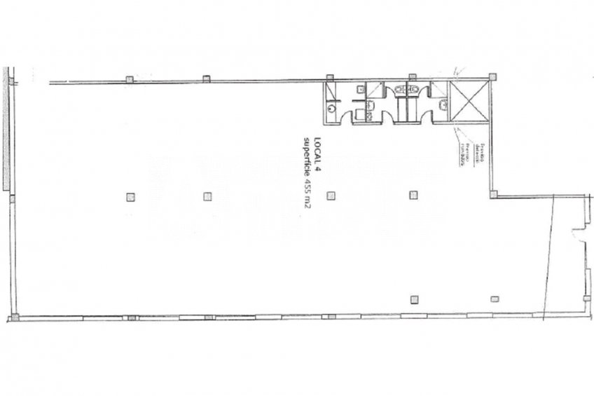
AMAT EMPRESES offers this spacious 450 sqm industrial unit / warehouse for rent, located within an industrial building in the Sud-Oest Industrial Estate of Sant Just Desvern, a well-established business area with excellent access to Barcelona and the wider metropolitan road network.
The property benefits from direct street access, with at-grade loading and unloading facilities, significantly streamlining daily operations. The unit includes two bathrooms and an office/kitchenette area, and is currently arranged into two large open-plan areas suitable for production and storage, along with two auxiliary rooms ideal for office use and additional storage.
The layout is fully flexible and easily adaptable, allowing the space to be configured to meet the specific requirements of each business. This unit is particularly well suited for light manufacturing, warehousing, last-mile logistics, technical services, industrial workshops or distribution companies, seeking a functional premises in a strategically located industrial environment.
The property benefits from direct street access, with at-grade loading and unloading facilities, significantly streamlining daily operations. The unit includes two bathrooms and an office/kitchenette area, and is currently arranged into two large open-plan areas suitable for production and storage, along with two auxiliary rooms ideal for office use and additional storage.
The layout is fully flexible and easily adaptable, allowing the space to be configured to meet the specific requirements of each business. This unit is particularly well suited for light manufacturing, warehousing, last-mile logistics, technical services, industrial workshops or distribution companies, seeking a functional premises in a strategically located industrial environment.
Map
Starlab Barcelona SL