Descripció
AMAT IMMOBILIARIS presenta nau industrial (tipus C) en lloguer, situada en el polígon industrial Santa Rita de Castellbisbal, amb fàcil accés des d'autopista AP7, que garanteix la ràpida connectivitat amb Barcelona i qualsevol població del Baix Llobregat.
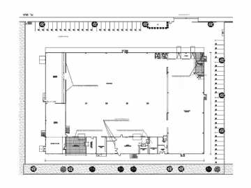
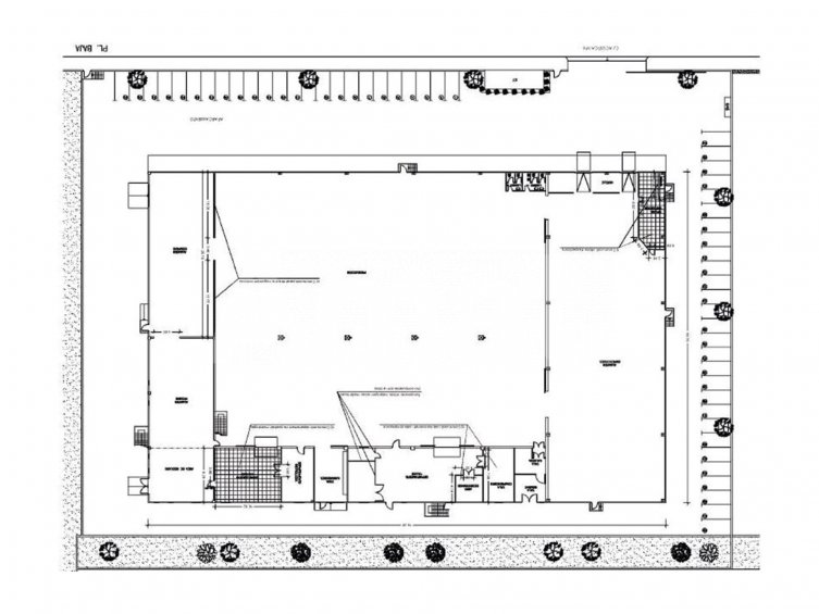
En una parcel·la de 10.627 m², la nau compta amb un total de 4.604 m² repartits en Planta baixa de 3.944 m² més Entresolat de 660 m².
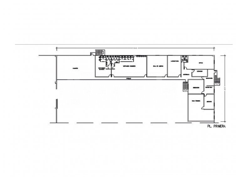
La planta baixa és majoritàriament una zona diàfana i compta amb 2.170 m² amb una altura de 6 m, 884 m² amb altura de 8 m (860 m² pertanyen a zona diàfana i 24 m² a zona destinada a oficines) i 230 m² amb altura de 3 m (sota l'altell).
La propietat està equipada amb dos molls de càrrega, una entrada lateral per a descarregar, estació transformadora, sistema contra incendis, diverses sales de juntes i despatxos amb climatització ,2 vestuaris, 5 banys i menjador. A més, dins de la mateixa parcel·la, disposa de 48 còmodes places d'aparcament exterior.
En una parcel·la de 10.627 m², la nau compta amb un total de 4.604 m² repartits en Planta baixa de 3.944 m² més Entresolat de 660 m².
La planta baixa és majoritàriament una zona diàfana i compta amb 2.170 m² amb una altura de 6 m, 884 m² amb altura de 8 m (860 m² pertanyen a zona diàfana i 24 m² a zona destinada a oficines) i 230 m² amb altura de 3 m (sota l'altell).
La propietat està equipada amb dos molls de càrrega, una entrada lateral per a descarregar, estació transformadora, sistema contra incendis, diverses sales de juntes i despatxos amb climatització ,2 vestuaris, 5 banys i menjador. A més, dins de la mateixa parcel·la, disposa de 48 còmodes places d'aparcament exterior.
Mapa
Nau industrial a Castellbisbal
SANTA RITA
Preu total:
26.000 € / mes
10627 M2
4604 M2
5
prkg
AC