Descripción
AMAT IMMOBILIARIS ofrece espectacular masía de estilo toscanés en venta, situada en el parque de Collserola, a 5 minutos del centro de Molins de Rei, y a 20 minutos del centro de Barcelona. Concesión administrativa de 44 años.
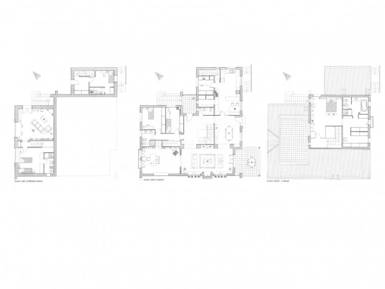
Vivienda de 382 m2 útiles, distribuidos en 2 cómodas plantas. En planta baja, encontramos un espectacular recibidor con escalera de volumetría exquisita, alrededor de esta estructura se dispone el salón principal con vigas vistas en el techo, chimenea y salida al porche, biblioteca o sala audiovisual, comedor abierto a la terraza e impresionante cocina de más de 30 m² con equipaciones de profesional (Cornue, Gaggenau...). También cuenta con aseo de cortesía y completa lavandería con acceso a planta inferior y zona de servicio. En planta superior encontramos la zona de noche con 1 máster suite con enorme vestidor, baño integrado, sala de estar y terraza; más 4 dormitorios dobles, 3 baños y amplia zona de estudio con vistas al jardín.
Esta propiedad, en plena naturaleza, puede ser totalmente autónoma, tiene su propio pozo, placas solares, generador de refuerzo y calefacción de Pellet. El diseño de interiores es extraordinario, con materiales nobles y atemporales (pavimento de arcilla natural hecho a mano, tarima de roble, carpintería exterior de madera tratada de alta resistencia...). El paisajismo del extenso jardín es de marcado carácter mediterráneo (con pinos centenarios, plantas aromáticas...). También dispone de piscina con vestuario y cocina de verano, más apartamento para invitados, integrado en la casa pero con entrada independiente.
AICAT 145 – API 1519 | VENTA 2ª MANO en BUEN ESTADO | CEE:QS7LWD13P – CHB*** | Impuesto ITP, según tipo vigente. Gastos notariales y registrales, según arancel.
Vivienda de 382 m2 útiles, distribuidos en 2 cómodas plantas. En planta baja, encontramos un espectacular recibidor con escalera de volumetría exquisita, alrededor de esta estructura se dispone el salón principal con vigas vistas en el techo, chimenea y salida al porche, biblioteca o sala audiovisual, comedor abierto a la terraza e impresionante cocina de más de 30 m² con equipaciones de profesional (Cornue, Gaggenau...). También cuenta con aseo de cortesía y completa lavandería con acceso a planta inferior y zona de servicio. En planta superior encontramos la zona de noche con 1 máster suite con enorme vestidor, baño integrado, sala de estar y terraza; más 4 dormitorios dobles, 3 baños y amplia zona de estudio con vistas al jardín.
Esta propiedad, en plena naturaleza, puede ser totalmente autónoma, tiene su propio pozo, placas solares, generador de refuerzo y calefacción de Pellet. El diseño de interiores es extraordinario, con materiales nobles y atemporales (pavimento de arcilla natural hecho a mano, tarima de roble, carpintería exterior de madera tratada de alta resistencia...). El paisajismo del extenso jardín es de marcado carácter mediterráneo (con pinos centenarios, plantas aromáticas...). También dispone de piscina con vestuario y cocina de verano, más apartamento para invitados, integrado en la casa pero con entrada independiente.
AICAT 145 – API 1519 | VENTA 2ª MANO en BUEN ESTADO | CEE:QS7LWD13P – CHB*** | Impuesto ITP, según tipo vigente. Gastos notariales y registrales, según arancel.
Mapa